Geweldige stadswoning met multifunctioneel souterrain – op loopafstand van het centrum van Bussum
Met trots presenteren wij dit charmante hoekhuis, gelegen in de geliefde en autoluwe Molenlaan. Hier woont u rustig en groen, terwijl het bruisende centrum van Bussum letterlijk om de hoek ligt.
Wat deze woning uniek maakt, is het royale souterrain van ruim 33 m². Een veelzijdige ruimte die u geheel naar eigen wens kunt benutten: als thuiswerkplek, extra slaapkamer, speelkamer of gastverblijf. Bovendien vindt u hier de moderne badkamer met luxe inloopdouche.
Het huis verkeert in uitstekende staat van onderhoud en is uitgerust met een modern multi-split aircosysteem. Zowel de woonkamer als de grootste slaapkamer zijn voorzien van een wand-unit die in de zomer zorgt voor verkoeling en in de winter comfortabel verwarmt.
De omgeving
De ligging is werkelijk ideaal: rustig wonen met alle voorzieningen op loopafstand. Binnen enkele minuten bereikt u winkels, gezellige horeca, scholen, het NS-station en diverse busverbindingen. Parkeren is hier goed geregeld: de straat valt binnen een vergunningengebied (Oostelijke Schil). Voor slechts € 41,30 per jaar (2025) kunt u bij de gemeente Gooise Meren een parkeervergunning aanvragen (maximaal 2 per adres).
De Molenlaan staat bekend om haar karakteristieke vooroorlogse woningen en haar autoluwe karakter, wat zorgt voor een prettige en kindvriendelijke leefomgeving.
Indeling
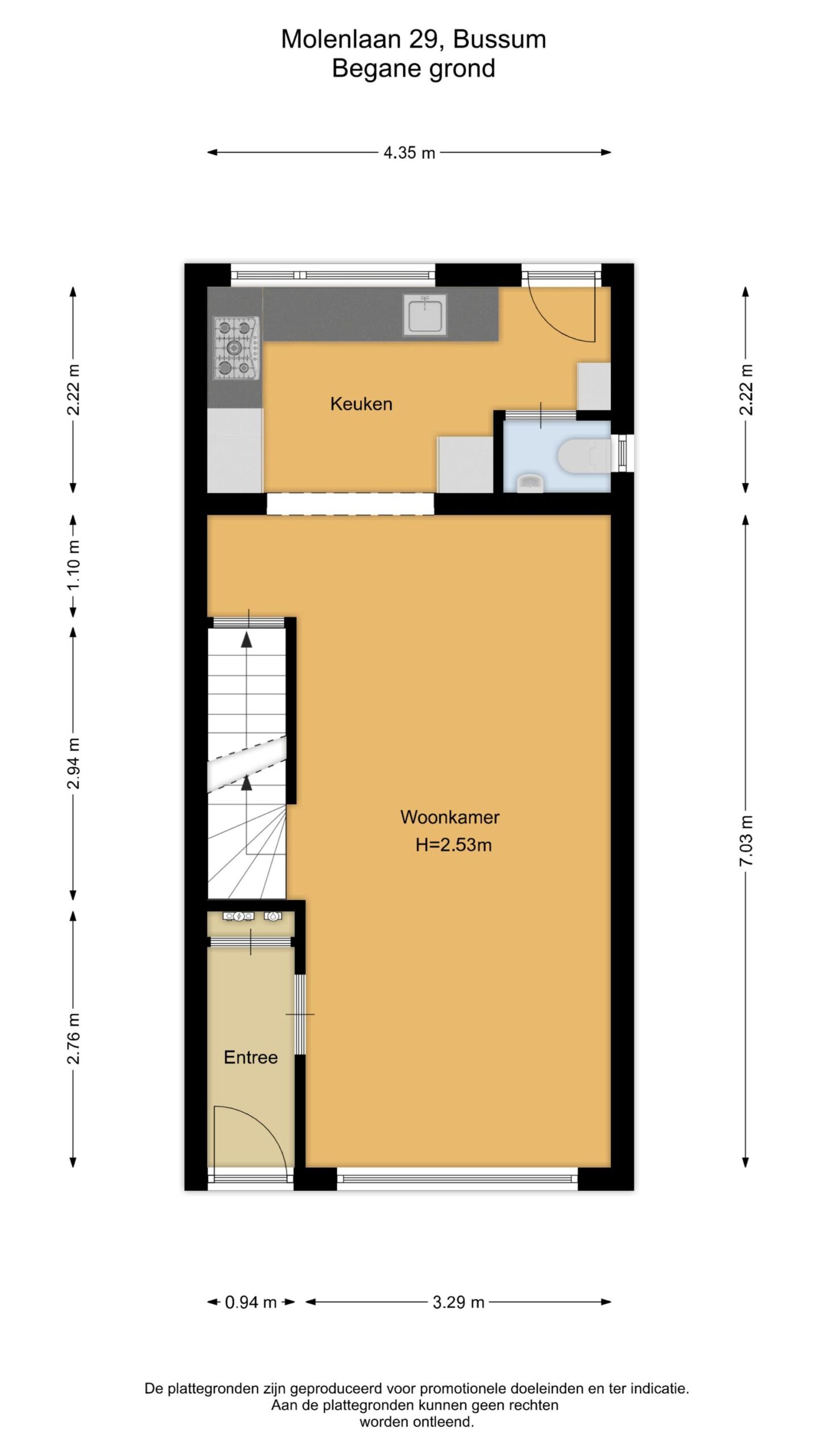
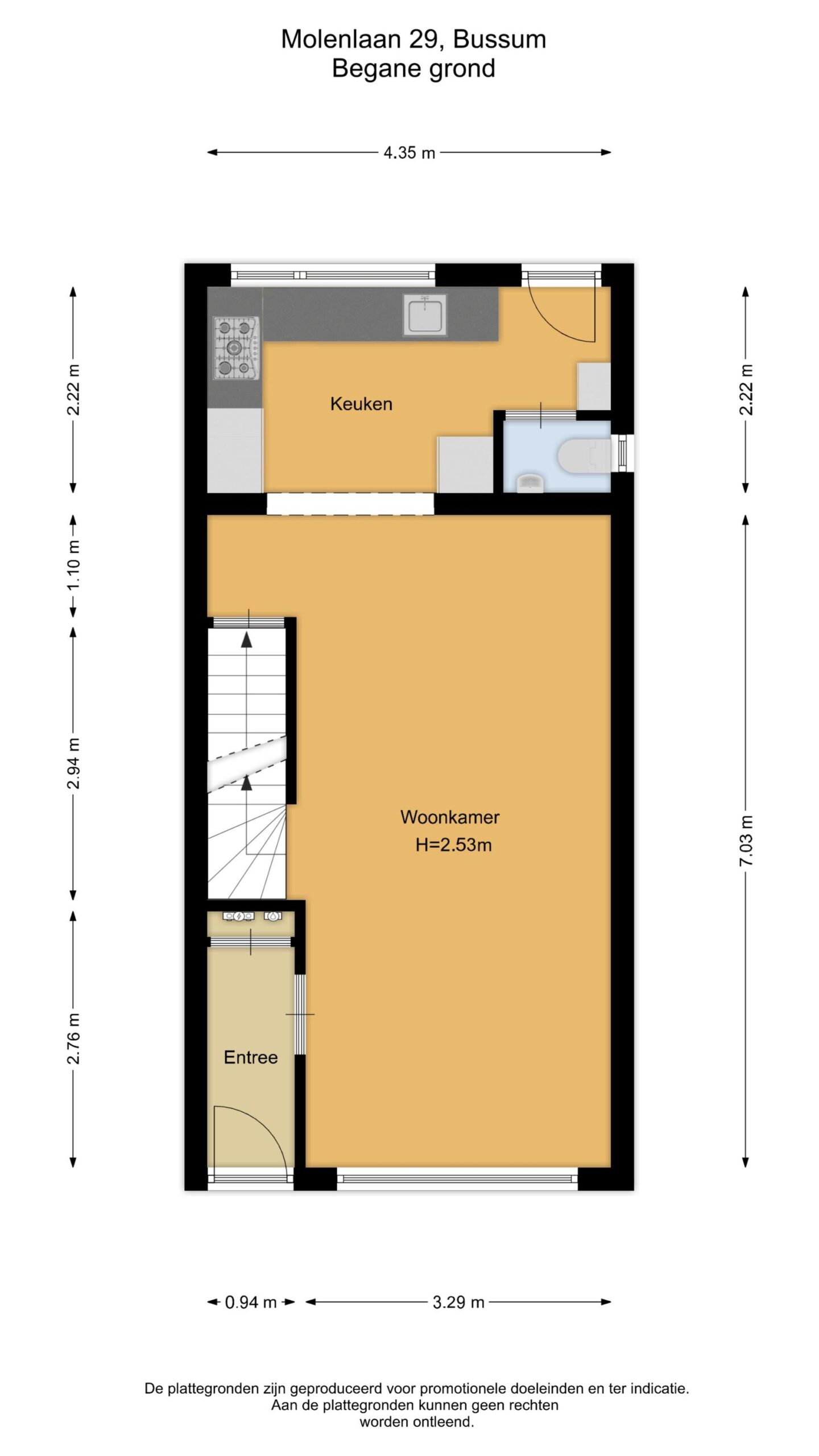
Begane grond
Entree, hal met meterkast, toegang tot de lichte en royale L-vormige woon-/eetkamer met open keuken. De keuken is compleet uitgerust met een 5-pits gasfornuis, koel-vriescombinatie, vaatwasser en separate oven/magnetron. Vanuit de keuken loopt u zo de gezellige patiotuin in. Daarnaast bevindt zich op deze verdieping een modern toilet.
Souterrain
Via de vaste trap bereikt u het multifunctionele souterrain van ruim 33 m² met een plafondhoogte van 2,28 meter. Hier bevindt zich de moderne badkamer, voorzien van een ruime inloopdouche met regen- en handdouche, een wastafelmeubel, kolomkast en designradiator. Het souterrain beschikt over centrale verwarming, maar blijft in de zomer heerlijk koel.
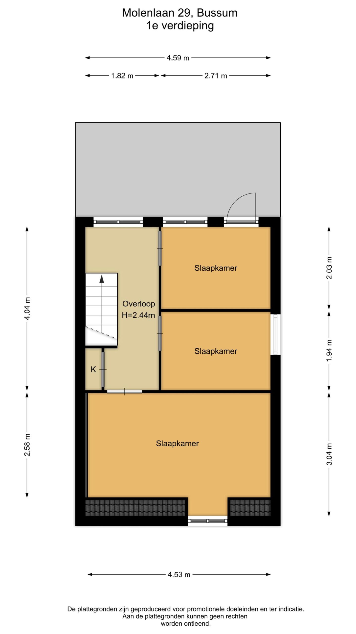
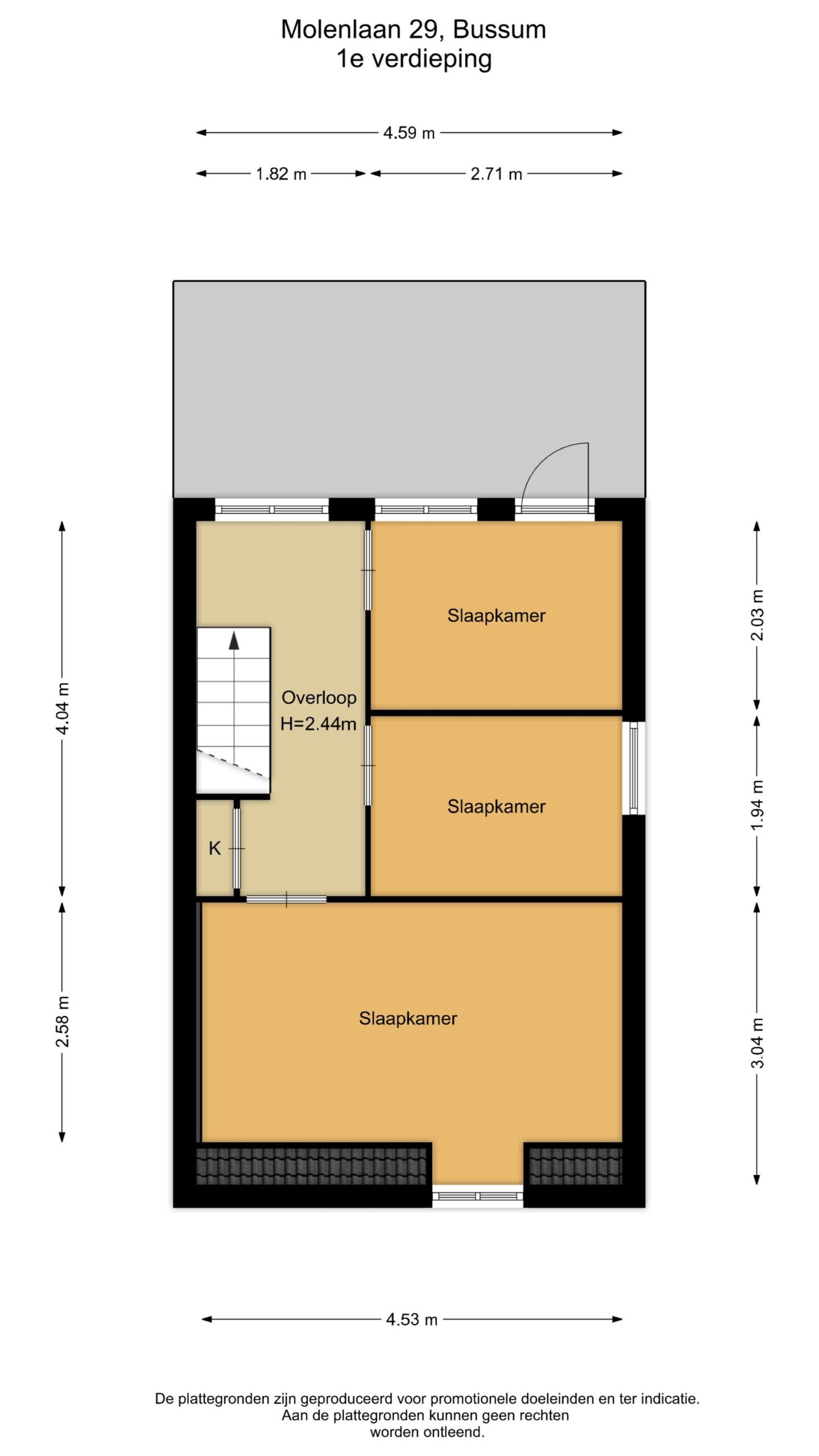
Eerste verdieping
Overloop met praktische inbouwkast en wastafelmeubel. Drie slaapkamers van verschillende afmetingen, ideaal als master bedroom, kinderkamer of logeerkamer. De plafondhoogte bedraagt hier 2,41 meter.
Kortom
Een sfeervolle en instapklare stadswoning met verrassend veel ruimte en een uniek souterrain. Perfect gelegen in een rustige straat, op steenworp afstand van het gezellige centrum van Bussum. Een ideale combinatie van comfort, karakter en locatie!
Overweegt u ook een stap te maken?
Bent u nieuwsgierig naar de actuele waarde van uw woning of overweegt u zelf te verkopen? Neem dan gerust contact met ons op voor een vrijblijvende waardebepaling of verkoopadvies. Wij helpen u graag verder.





















